
UPDATED:
Key Details
Property Type Single Family Home
Sub Type Single Family Residence
Listing Status Active
Purchase Type For Sale
Square Footage 4,593 sqft
Subdivision Carillon Parc Phase Iii
MLS Listing ID 20848321
Style Traditional
Bedrooms 4
Full Baths 4
Half Baths 2
HOA Fees $2,950/ann
HOA Y/N Mandatory
Year Built 2026
Lot Size 5,061 Sqft
Acres 0.1162
Lot Dimensions 46x110
Property Sub-Type Single Family Residence
Property Description
The open-concept main level features a chef's dream kitchen with custom cabinetry, professional-grade appliances, and a spacious island that serves as the perfect gathering spot for both intimate family moments and lavish entertaining.
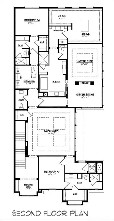
The primary suite offers a private sanctuary with a spa-inspired bathroom featuring a soaking tub, oversized shower, and dual vanities. Additional bedrooms each boast en-suite bathrooms and generous closet space, providing comfort and privacy for family and guests alike.
WillowTree's signature attention to detail is evident throughout, from the hand-selected finishes to the smart home technology seamlessly integrated into every corner of this exceptional residence. Energy-efficient systems and superior insulation ensure comfort while minimizing environmental impact.
Residents enjoy proximity to upscale dining, boutique shopping, and the community's private parks. This rare opportunity to own in this sought-after development promises not just a home, but an unparalleled lifestyle of luxury and convenience.
Location
State TX
County Tarrant
Direction 114 E, Exit Dove Rd, Right N White Chapel, Left on E Kirkwood Blvd, Right into Phase III
Rooms
Dining Room 1
Interior
Interior Features Elevator
Fireplaces Number 3
Fireplaces Type Living Room
Appliance Gas Range, Microwave, Refrigerator
Exterior
Garage Spaces 3.0
Utilities Available City Sewer, City Water, Concrete, Curbs
Total Parking Spaces 3
Garage Yes
Building
Story Two
Level or Stories Two
Structure Type Brick,Rock/Stone
Schools
Elementary Schools Johnson
Middle Schools Carroll
High Schools Carroll
School District Carroll Isd
Others
Acceptable Financing Cash, Conventional
Listing Terms Cash, Conventional
Virtual Tour https://www.propertypanorama.com/instaview/ntreis/20848321

NEARBY SCHOOL & BUSINESS
GET MORE INFORMATION




